Vingroup sẽ khởi động cùng lúc 4 dự án tại quê nhà tỷ phú Phạm Nhật Vượng trong 10 ngày nữa
Tổng quy mô 4 dự án của Vingroup là hơn 117 nghìn tỷ đồng.
Vào ngày 19/12 tới đây, cả nước sẽ đồng loạt khởi công, khánh thành trên 200 công trình chào mừng Đại hội đại biểu toàn quốc lần thứ XIV của Đảng.
Theo đó, tại Hà Tĩnh, tỉnh đăng ký 6 dự án, trong đó có 2 dự án tổ chức khởi công, 4 dự án làm lễ khởi động. Tổng nguồn vốn của các dự án đạt hơn 128.552 tỷ đồng, trong đó 1 dự án sử dụng nguồn vốn ngân sách tỉnh, các dự án còn lại từ nguồn vốn nhà đầu tư trong nước.
Khu kinh tế Vũng Áng tiếp tục là "thỏi nam châm" thu hút quan tâm của nhà đầu tư. Trong sự kiện này, Tập đoàn Vingroup đăng ký tổ chức lễ khởi động 4 dự án tại Khu công nghiệp Vinhomes Vũng Áng gồm: Nhà máy sản xuất thép Vinmetal Hà Tĩnh, tổng mức đầu tư gần 80.000 tỷ đồng, quy mô hơn 461 ha; Khu đô thị mới Kỳ Trinh (phường Sông Trí), tổng mức đầu tư 8.000 tỷ đồng, quy mô sử dụng đất hơn 84 ha; Nhà máy Điện gió Kỳ Anh có công suất 400 MW, cung cấp điện năng 1.053,3 GWh/năm, tổng vốn đầu tư 17.051 tỷ đồng; Nhà máy Điện gió Eco Wind Kỳ Anh, tổng mức đầu tư 22.647 tỷ đồng, công suất gần 500 MW, sản lượng điện dự kiến hơn 1.322 GWh/năm.
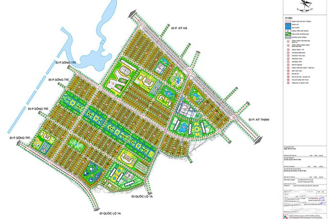
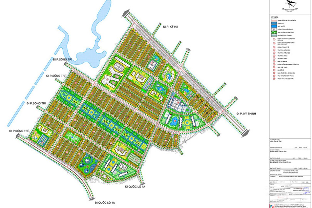
Phối cảnh và Quy hoạch chi tiết dự án Khu đô thị mới Kỳ Trinh (phường Sông Trí)
Các dự án đang được hoàn thiện hồ sơ, thủ tục pháp lý liên quan. Ban Quản lý Khu kinh tế (KKT) tỉnh đang phối hợp chặt chẽ với các sở, ngành rà soát kỹ thủ tục, hướng dẫn từng bước nhằm hỗ trợ tối đa chủ đầu tư hoàn tất thủ tục pháp lý, đảm bảo điều kiện khởi động dự án theo đúng quy định. Cùng đó, triển khai khẩn trương công tác GPMB, rà soát quỹ đất nhằm tạo mặt bằng sạch, sẵn sàng cho ngày 19/12 tới.
Ban Quản lý Khu kinh tế tỉnh đang tập trung hỗ trợ tối đa chủ đầu tư hoàn tất thủ tục, hồ sơ nhằm đảm bảo khởi động dự án theo đúng quy định.
Cùng với 4 dự án tại KKT Vũng Áng, trong dịp này, Hà Tĩnh có 2 dự án đăng ký khởi công. Đó là, dự án đầu tư xây dựng Bảo tàng Hà Tĩnh, công trình văn hoá trọng điểm của tỉnh giai đoạn 2025 – 2030 với tổng mức đầu tư 305 tỷ đồng, sử dụng nguồn vốn ngân sách tỉnh. Diện tích quy hoạch dự án khoảng 2,28 ha, gồm khối nhà chính 4 tầng và các hạng mục khác trên tổng diện tích 12.990 m2.
Phối cảnh Khu đô thị mới Xuân Thành - giai đoạn 1 do Công ty CP đầu tư Phát triển Harumi đầu tư.
Dự án Khu đô thị mới Xuân Thành, huyện Nghi Xuân - giai đoạn 1 (nay là xã Tiên Điền) có tổng mức đầu tư 549,5 tỷ đồng, quy mô sử dụng đất 45,54 ha do Công ty CP đầu tư Phát triển Harumi đầu tư.
Khu đô thị được xác định là một trong những hạt nhân phát triển đô thị phía Bắc của tỉnh, góp phần mở rộng không gian, kết nối chuỗi dịch vụ, du lịch ven sông Lam, thúc đẩy phát triển kinh tế - xã hội toàn khu vực. Đến thời điểm này, dự án đã hoàn thành GPMB phân kỳ giai đoạn 1, hoàn thành thiết kế, thẩm định và các thủ tục pháp lý theo quy định.


