Ấn tượng ngôi nhà sau cải tạo của cô gái độc thân

24/09/2023 08:00 AM | Sống

Habi House được một cô gái độc thân giữ và sửa sang lại do nó gắn bó sâu sắc với những kỉ niệm tuổi thơ của cô.

Ngôi nhà nằm ở TP Bắc Giang, trong khu dân cư cũ với những lô đất dài và hẹp. Có rất nhiều vấn đề trong ngôi nhà 20 năm tuổi này như không khí ngột ngạt, ít ánh sáng mặt trời, xuống cấp.

Ấn tượng ngôi nhà sau cải tạo của cô gái độc thân - Ảnh 1.

Habi House nằm trong khu dân cư cũ với những lô đất dài và hẹp.

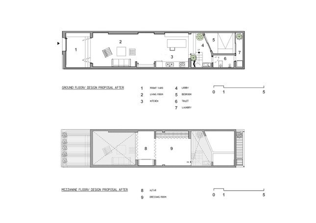
Kiến trúc sư đã đưa ra giải pháp thay đổi, bố trí lại các khu vực chức năng bằng cách hoán đổi vị trí bếp ăn và phòng ngủ, đồng thời đưa cầu thang ra khỏi gác lửng. Những bức tường ngăn cách đã được dỡ bỏ, không gian sống giờ đây được kết hợp và trở nên rộng rãi, mát mẻ hơn.

Việc nâng sàn phòng ngủ tạo nên sự mới mẻ, khô ráo cùng với tầm nhìn bao quát ngôi nhà. Điểm nhấn của ngôi nhà là không gian đệm trước phòng ngủ, là điểm kết nối giữa tầng trệt và tầng lửng, phòng ngủ, phòng khách.

Sân trước, sân sau và khoảng đệm giữa nhà được lợp bằng polycarbonate trong giúp ánh sáng tự nhiên tràn ngập khắp các khu vực trong nhà.

Ấn tượng ngôi nhà sau cải tạo của cô gái độc thân - Ảnh 2.

Ấn tượng ngôi nhà sau cải tạo của cô gái độc thân - Ảnh 3.

Ấn tượng ngôi nhà sau cải tạo của cô gái độc thân - Ảnh 4.

Ấn tượng ngôi nhà sau cải tạo của cô gái độc thân - Ảnh 5.

Ấn tượng ngôi nhà sau cải tạo của cô gái độc thân - Ảnh 6.

Ấn tượng ngôi nhà sau cải tạo của cô gái độc thân - Ảnh 7.

Thay đổi mái nhà giải quyết thành công các vấn đề về ánh sáng và nhiệt độ. Phần khung chính của ngôi nhà bao gồm tường chịu lực và gác lửng không thay đổi. Tầng lửng được gia cố bằng hệ thống dầm cột thép hình chữ I và thay thế phần mái lợp amiang bị hư hỏng. Nâng mái mới cao hơn tạo khoảng trống và giúp thông gió.

Kiến trúc sư chỉ sử dụng các vật liệu địa phương phổ biến như gạch, thép, mái kim loại, mái mờ và ván ép nhưng vẫn tạo ra những thay đổi ấn tượng.

Ấn tượng ngôi nhà sau cải tạo của cô gái độc thân - Ảnh 8.

Ấn tượng ngôi nhà sau cải tạo của cô gái độc thân - Ảnh 9.

Sau khi được cải tạo, không gian trong nhà đã thay đổi hoàn toàn. Nó tràn ngập không khí trong lành và ánh sáng. Nhiệt độ ngôi nhà đã được cải thiện đáng kể trong mùa hè nóng bức nhờ hệ thống thông gió tốt hơn. Sắp xếp lại vị trí của các phòng làm cho các chức năng phù hợp hơn với lối sống của chủ sở hữu. Những hình ảnh “trước – sau” về công trình cải tạo này tạo nên sự ngạc nhiên và thích thú khó tả cho người dân địa phương.

Ấn tượng ngôi nhà sau cải tạo của cô gái độc thân - Ảnh 10.

Ấn tượng ngôi nhà sau cải tạo của cô gái độc thân - Ảnh 11.

Ấn tượng ngôi nhà sau cải tạo của cô gái độc thân - Ảnh 12.

Thông tin công trình

Thiết kế và thi công: S.LA Architecture

Diện tích đất: 65m2

Tổng mức đầu tư: 450 triệu đồng (tại thời điểm năm 2022)

Vị trí: TP Bắc Giang

Chủ trì: Nguyễn Xuân Khương

Thiết kế: Nguyễn Sơn Tùng

Giám sát: Phạm Văn Đạt

Theo S.LA Architecture

Theo Lê Phương

Từ khóa:  không gian sống
Cùng chuyên mục
XEM